Designed while at Jarmel Kizel Architects and Engineers
Designed while at Jarmel Kizel Architects and Engineers

Original Bakery Elevation

 Original Bakery Elevation

Original Bakery Elevation

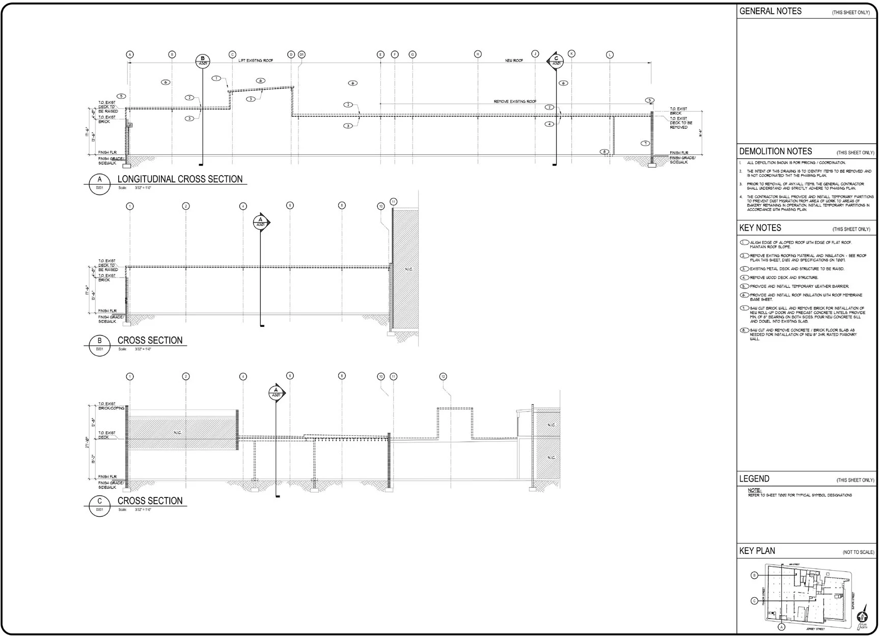
 Final Rendering for the Two Phase Renovation and System Updates to a 100 year old bakery in Harrison, NJ

Final Rendering for the Two Phase Renovation and System Updates to a 100 year old bakery in Harrison, NJ

 Final Rendering for the Two Phase Renovation and System Updates to a 100 year old bakery in Harrison, NJ

Final Rendering for the Two Phase Renovation and System Updates to a 100 year old bakery in Harrison, NJ

 Arial Photograph of the original 55,000 sf bakery complex

Arial Photograph of the original 55,000 sf bakery complex

 Arial Photograph of the original 55,000 sf bakery complex

Arial Photograph of the original 55,000 sf bakery complex

75% Review Set_Page_2.jpeg
75% Review Set_Page_4.jpeg
75% Review Set_Page_7.jpeg
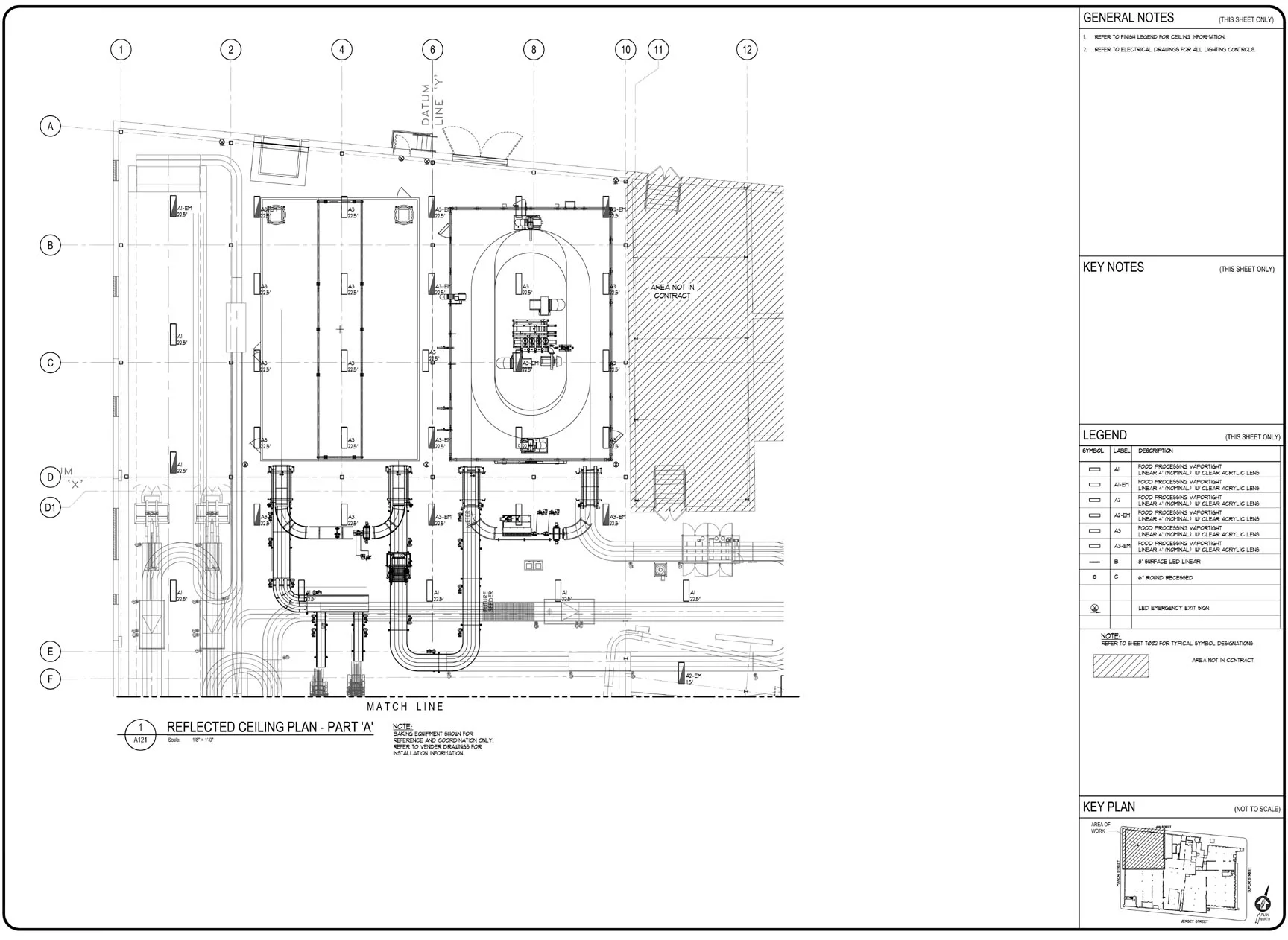
75% Review Set_Page_8.jpeg
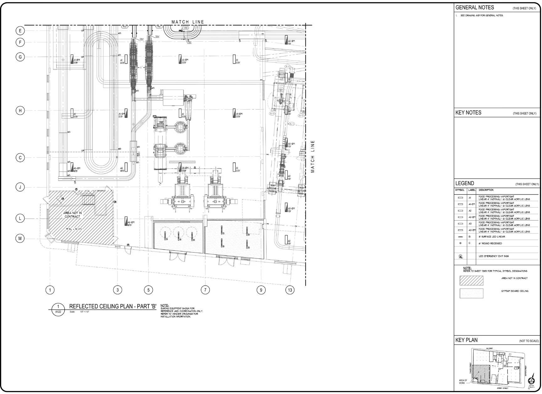
75% Review Set_Page_16.jpeg
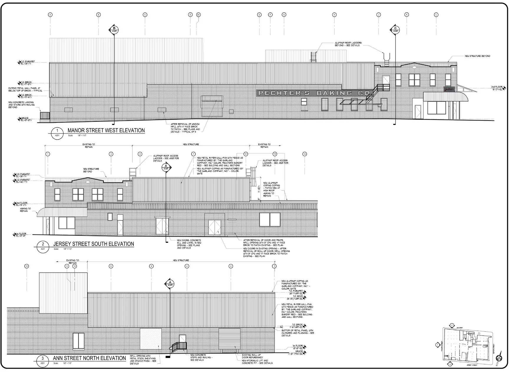
75% Review Set_Page_17.jpeg
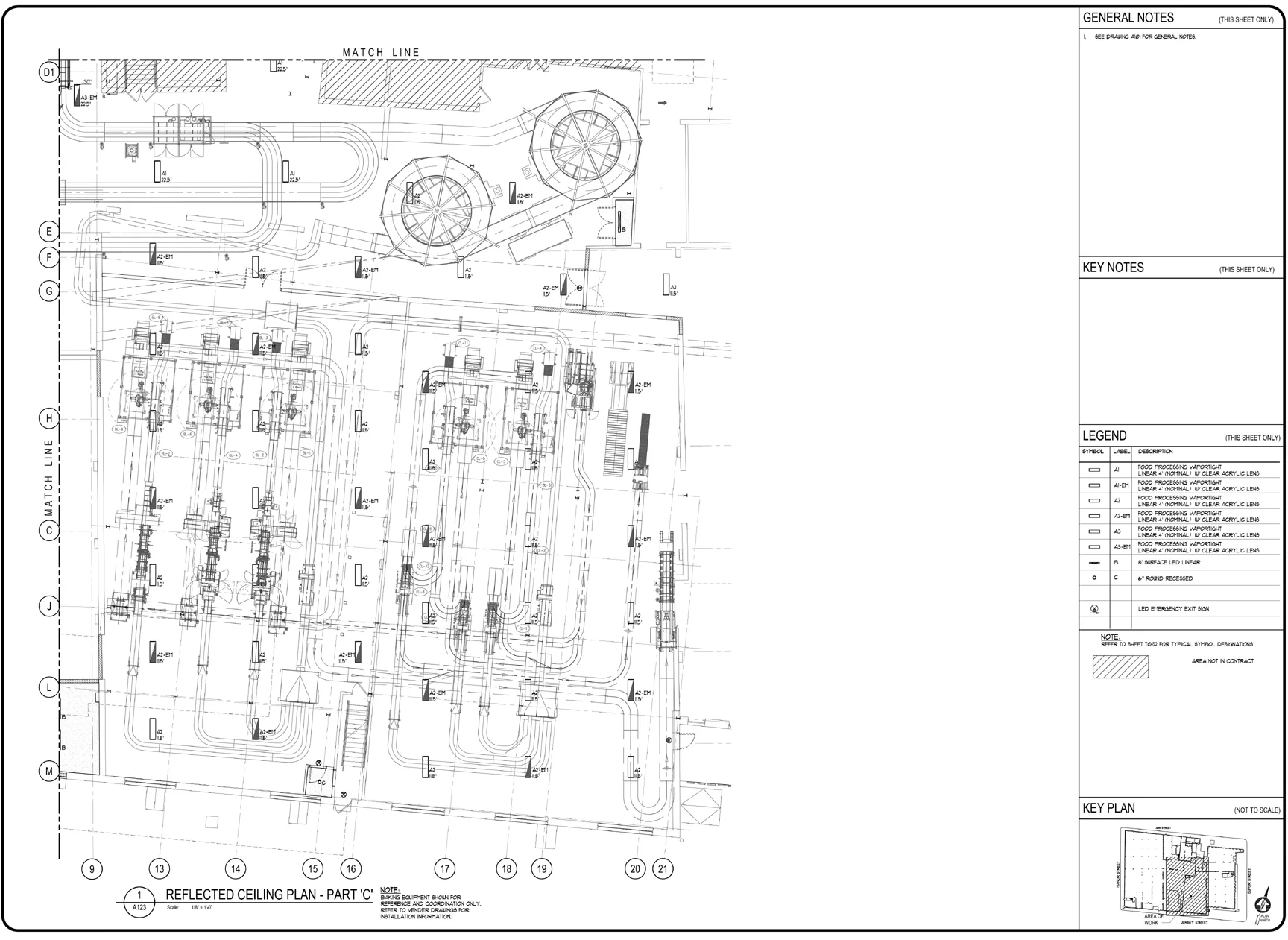
75% Review Set_Page_18.jpeg
75% Review Set_Page_23.jpeg
75% Review Set_Page_24.jpeg